
義齒生產車間布局優化如何帶來高效收益?
工廠布局規劃設計與改善的六大原則:1、統一原則。在布局設計與改善時,必須將各工序的人、機、料、法4要素有機結合起來并保持充分的平衡。因為,四要素一旦沒有統一協調好,作業容易割裂,會延
2023-08-28
了解更多
_20230825.jpg)
車間布局規劃公司:電子半導體無塵車間布局規劃原則及要點
半導體無塵車間布局規劃是一個復雜而重要的任務,需要根據實際情況和工藝要求進行調整和優化。以下是車間布局規劃公司分享的一些常見的布局規劃原則和要點:
2023-08-25
了解更多

工廠車間布局規劃之道路轉彎半徑怎么設計才好?
工廠車間布局規劃對一個企業來說至關重要,今日小旺就給大家分享道路轉彎半徑怎么設計才好?
2023-08-15
了解更多

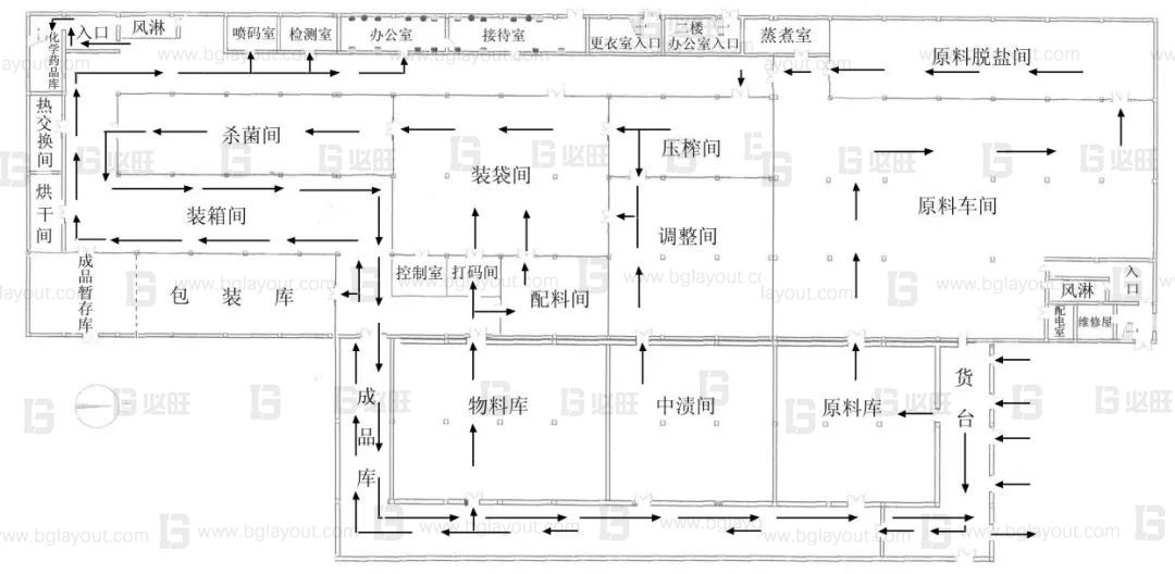
淺談食品車間如何布局規劃
食品車間布局規劃、建設、改造這是一個很大的話題,本篇只從車間布局的規劃結合自己的實際經歷談談個人看法。俗話說“凡事預則立,不預則廢。”,做好車間布局規劃對車間改造建設、日后運營能起
2023-08-09
了解更多

【干貨分享】涂裝車間規劃設計的重要性
車間布局規劃咨詢公司指出,車間規劃設計是工藝設計的重要組成部分,關系整個車間的命運。布局設置是從顧客需求開始,圍繞作業員設計工序流動,最終的目的是使作業流程中的浪費和過載達到最小化
2023-08-04
了解更多

單元裝配線車間理想布局之:花瓣型布局
車間是進行產品生產或其他生產、業務活動的主要場所。它占有一定的廠房或場地,擁有為完成一定生產任務所必需的設備、工具、原材料、半成品,以及一定數量的作業人員、技術人員和管理人員。如何
2023-08-02
了解更多

【干貨】食品生產車間布局設計要求大全
今天車間布局設計公司為食品人奉上一份食品生產車間布局設計要求大全 一.廠房和車間設計布局通用要求
2023-07-26
了解更多

【車間布局干貨】藥廠車間如何布局?
今天,我們來談一下藥廠車間布局如果規劃:其實,當廠區總平初步確定之后,各建筑物的“占地面積、建筑面積、層數層高”還是需要和“產品、產能、工藝、物料、人員、規模”相適應,實際上,車間
2023-07-24
了解更多

車間布局之工藝式布局的優點
車間布局之工藝式布局的優點:有利于工藝管理,設備利用率高,對模具品種變換的適應性強。產品多為單件小批量,不確定性較大,工序的聯接性不高,因此我們選擇同類型的加工設備相對集中布
2023-07-20
了解更多
選擇上海必旺
開啟您的智能制造模式 ,加速企業數字化轉型
免費獲取方案報價
(1)_20230519.png)

400-800-9259

.jpg)