行業知識
有疑惑,請問有什么可以幫您?
淺談食品車間如何布局規劃
來源:必旺智能2023-08-09
食品車間布局規劃、建設、改造這是一個很大的話題,本篇只從車間布局的規劃結合自己的實際經歷談談個人看法。俗話說“凡事預則立,不預則廢。”,做好車間布局規劃對車間改造建設、日后運營能起到事半功倍的效果對產品質量生產成本也有決定性的影響。
1、整體布局
車間的整體布局,要以產品的工藝流程、生產規模、配套設備和預定的場地為主線,結合其他細節來進行調整。如果是新建廠房,可以根據工藝和規模自由設計,在滿足工藝需要的基礎上,配合場地利用和預期的風格進行外觀布局,如果是已有固定建筑物,整體結構已經定型,只能在有限空間內進行規劃。
車間布局的總體原則是以物流為主線,結合水、電、汽、冷的供給方便,規劃整體結構,然后根據細節調整,同時安全和消防要求也要放在首位,安全不僅僅是消防和疏散這么簡單,包括建筑結構、建筑和設備設施材料、各種管線布局隱患的預防,等等。
車間布局應順暢、緊湊、合理,避免往返交叉和長距離運輸或多次運輸,但并不是要一條線式的設計,這樣空間利用和管理上都會有欠缺。為使生產車間流程順暢同時避免一條直線帶來的弊端,一般將建筑物設計成T形、L形或U形,如果是多層車間,還要考慮上下運輸的問題。新建廠房還應考慮后期擴建的可能性,要留有適當的發展余地。
2、物流及倉庫
前面提到,車間總體布局以物流為主線,其他布局在這個基礎上調整。食品加工過程基本上都是從原料→半成品→成品的過程,即從非清潔到清潔的過程,因此,車間原則上應該按照產品的加工進程順序進行布局,使產品加工從非清潔的環節向清潔環節過渡,避免在加工流程中出現交叉和倒流。不同清潔區之間要要采取相應的隔離措施,形成不同的功能間,以便控制彼此間的人流、物流和空氣流,避免產生交叉污染。物流的傳遞通過傳遞窗進行或通過加工設備自帶功能傳輸,如連續蒸煮機、油炸機、蒸柜生熟區分別開門等,既隔開了生熟區域,又傳遞了物料。不同清潔區要分別設置工器具清洗、消毒間,根據需要配備清洗消毒設施設備,消毒間應有冷熱水供應,排水順暢。
下角料和廢棄物要用密閉的包裝從專用出口運出,或按物流逆向運出,應注意交叉污染的預防。
倉庫為車間配套建筑,位置應盡量靠近相應的生產車間和輔助車間,并根據貯存物料的不同,選定符合防火安全所要求的間距與結構。
原、輔料庫和成品庫:原輔料和成品庫,根據產品的貯存需要,可能分為常溫庫、保鮮庫和冷凍庫;由于食品加工的原料千差萬別,清潔度也不同,如新鮮的蔬菜,水果,新鮮或冰鮮的肉類,水產品等,如果不能及時處理,需要冷藏保存,冷凍的肉類和水產品,則需要冷凍保存,而蔬菜、肉類、水產品,清潔度和風味截然不同,即使貯存要求相同,也不能同庫存放,運輸工具也應該分開;綜合以上因素,同時考慮進入車間的方便性,制冷能源供給的方便,要統籌考慮倉庫的位置、面積和區間劃分,以及各自出、入庫通道,進、出車間的通道等。一般需要控制溫度倉庫,盡量與車間相連,便于出入庫,避免原料進入車間使用或成品入庫時需要在廠區運輸,而常溫貯存的原輔料庫可以在離車間不遠的位置單獨建設。
原料庫和成品庫,如果清潔度和貯存條件一致,也可以建在一起,適當進行物理隔離,這樣的情況車間一般為U形,原料入口和成品出口在同一側。
包裝材料庫:考慮防火和進貨方便,包材庫和常溫原輔料庫一樣,大型工廠可以建不跟車間連為一體獨立倉庫,包材庫可以和常溫原輔料庫在一個建筑內不同區域存放,但應有跟車間相連的內、外包材暫存庫,用于一兩天內使用的包材消毒。小型工廠的包材庫存量較少,一般可以設置在在車間包裝間相連位置,便于傳遞進車間使用。
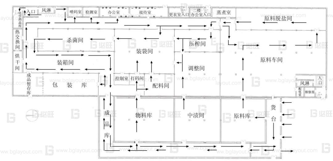
物流圖示例(僅供參考)

3、人流及更衣室、洗手消毒設施,風淋
人流是在車間布局主流程基本確定的基礎上,進行布局人員進入車間的入口,更衣室、洗手消毒設施的設置,進入車間后人的流動錄像等。
目前一般要求不同清潔度的區域,應分別設置車間入口,除非建筑物已經固定無法改變,盡量不再設置從非清潔區進入清潔區的二次更衣的模式。每個車間入口都應設置更衣室,洗手消毒設施,清潔度要求高的區域還應設置風淋。比較規范的更衣室應有換鞋間,便衣存放間,換工作服、鞋間,洗手消毒設施的配備要跟該區域的工作人員數量相適應。
人員進入車間后,應直接進入工作區域,避免相互之間交叉或跟物流交叉,盡量避免人員穿過一個功能間進入另一個功能間工作的情況,每個功能間都應配備洗手消毒的設施以用于定時或隨時洗手消毒。
人流圖示例(僅供參考)

4、能源配備和供給(水、電、氣、蒸汽、天然氣等)
這一部分主要基建和設備部的同事負責,質量人員關注較多的一般是水(冰、蒸汽)和氣(換氣、消毒、空氣潔凈度)。
(1)水流(供水與排水)
車間供水方向應逆加工進程方向,即由清潔區向非清潔區流,供水管路應盡量統一走向,冷水管要避免從操作臺上方通過,以免冷凝水凝集滴落到產品上。為了防止水管外不潔的水被虹吸和倒流入管路內,須在水管適當的位置安裝真空消除器和止回閥。
車間的排水溝應該用表面光滑、不滲水的材料鋪砌,施工時不得出現凹凸不平和裂縫,并形成一定傾斜度,以保證車間排水的通暢,最好各區域單獨設出口,需要跨區域排水,排水的方向要從清潔區向非清潔區方向排放。排水溝出口要有防鼠網罩,車間的地漏或排水溝的出口應使用U型或P型、S型等有存水彎的水封,以便防蟲防臭。
如果有需要蒸汽加熱的設備,還需要考慮蒸汽的供給、排汽設施,冷凝水控制等。
供水、排水,蒸汽等管道要有標識并標明水(汽)的流向。
供水圖示例(僅供參考)

污水排放圖示例(僅供參考)

(2)氣流
氣流主要考慮車間的封閉性,空氣潔凈度,功能間之間壓差,潔凈度要求高的車間,進入車間的空氣應通過空氣過濾裝置,并通過正壓送風,形成壓差,避免空氣從其他區域進入。存在空氣流動的功能間之間,空氣應從潔凈度要求高的區域,流向相對較低的區域。
車間要配備空氣消毒設施,現在普遍使用的是臭氧發生器。
氣流圖示例(僅供參考)

(3)制冷、控溫
車間有冷凍設施和控溫要求的,需要考慮制冷設施和冷媒管道的布局,減少輸送帶來的損耗,相應的管道避開生產線和工作臺,也要考慮冷凝水的控制。
(4)動力供應(來自設備同事的助力,僅供參考)
動力供應設施應靠近負荷中心,根據需要要有配套的供電、供水、供蒸汽、供天然氣的條件,供電距離和容量上應得到供電部門的保證。鍋爐房應盡可能布置在使用蒸汽較多的地方,這樣可以使管路縮短,減少壓力和熱能損耗。污水處理站應布置在廠區和生活區的下風向,并保持一定的衛生防護距離;同時應利用標高較低的地段,使污水盡量自流到污水處理站。污水排放口應在取水的下游。污水處理站的污泥干化場地應設在下風向,并要考慮汽車運輸條件。壓縮空氣主要用于儀表動力、鼓風、攪拌、清掃等。因此空壓站應盡量布置在空氣較清潔的地段,并盡量靠近用氣部門。空壓站冷卻水量和用電量都較大,故應盡可能靠近循環冷水設施和變電所。由于空壓機工作時振動大,故應考慮振動、噪聲對鄰近建筑物的影響。
(5)管線布局(同樣來自設備同事的助力,僅供參考)
食品工廠的工程管線較多,除各種公用工程管線外,還有許多物料輸送管線。了解各種管線的特點和要求,選擇適當的鋪設方式,要在總體設計的時候統一考慮。處理好各種管線的布置,不但可節約用地,減少費用,而且可使施工、檢修及安全生產帶來很大的方便。管線布置時一般應注意下列原則和要求:
1)滿足生產使用,力求短捷,方便操作和施工維修;
2)宜直線鋪設,并與道路、建筑物的軸線以及相鄰管線平行。主管應布置在靠近主要用戶及支管較多的一側;
3)盡量減少管線交叉。管線交叉時,其避讓原則是:小管讓大管;壓力管讓重力管;軟管讓硬管;臨時管讓永久管;
4)應避開露天堆場及建筑物的護建用地;
5)除雨水、下水管外,其他官線一般不宜布置在道路以下。地下管線應盡量集中共架布置,鋪設時應滿足一定的埋深要求,一般不宜重疊鋪設;
6)大管徑壓力較高的給水管宜避免靠近建筑物布置;
7)管架或地下管線應適當留有余地,以備工廠發展需要;
5、也說標準與合規
合規是必須的,符合標準也是基本要求,但是每做一件事,都要找標準的某條某款,然后再去做,除了效率低下外,可能很難有大局觀和整體布局的意識。
理想的做法應該是食品專業人員了解食品加工的基本原理,基建設備人員了解建筑和機械及水電氣等安全知識,熟知法規和標準要求,透徹理解法規和標準規定的本質宗旨(而不僅僅是具體的參數),明白這些規定要控制的危害和行為,將這些意識融合到自己的思維中,利用團隊的力量,做出宏觀布局。宏觀布局有了,做具體細節的時候,再去查具體標準,確定參數,或者有專人負責細節處理,根據參數和具體情況,再做微調。
車間布局規劃設計公司提醒:一定要注意,生產質量人員和基建設備人員,要團結協作,統籌考慮,如果各想各事,很難做出合理的布局和規劃
成功案例
選擇上海必旺
開啟您的智能制造模式 ,加速企業數字化轉型
免費獲取方案報價
(1)_20230519.png)

400-800-9259

.jpg)

返回列表




