行業知識
有疑惑,請問有什么可以幫您?
車間布局規劃方案:各種車間布局圖+規劃思路
來源:必旺智能2023-06-12
車間布局規劃是工藝設計的重要組成部分,關系整個車間的命運。布局設置是從顧客需求開始,圍繞作業員設計工序流動,最終的目的是使作業流程中的浪費和過載達到最小化、使車間透明化、消除經驗式的管理弊端,使空間和勞動力得到最大限度的利用。以下小旺以食品行業為例,分享車間布局圖+規劃思路。
一、確定功能分區
確定車間框架尺寸的長寬高、柱距后,先要根據產品種類、產品特性等企業信息和對應的法規標準來進行清潔分區、工藝分區和附屬分區的考慮,并估算各個功能區的空間需求。
二、總體布局考慮
在完成了流程分析和確定功能分區后,我們可以根據場地條件進行以下內容的考慮:
1、設想總體布局結構:如直線型、L型、U型、折線型、回字形等
2、設想建筑框架大小(對于新建)
3、繪制場地基準圖紙,初步分割出各功能區空間
4、初步確定電梯、樓梯、通道、人流、物流方向位置
5、與其它車間關系(總更衣、人流、物流通道共用)
6、與倉儲銜接
7、與能源動力銜接
8、預留區域(按規劃)等
三、生產設施設備布置
在場地條件的基礎上進行總體布局后,我們就可以通過建模與排列組合進行各功能區的生產設備設施布置,大致包括:
1、加工區生產設備、操作臺組排列;
2、附屬區域布置(更衣、潔具、器具清洗存放、原輔料存放、包材存放、機房等);
3、各功能區空間分割跟隨排列調整優化(長寬高);
4、各功能區的物流銜接(緩沖間、傳遞口、輸送帶);
5、各功能區的門窗設置;
6、電梯、樓梯、通道調整優化(對于新建);
7、建筑框架大小(對于新建);
8、夾層設置、設備平臺/底座設置,等;
四、衛生設施配套布置
在生產設施設備布置的基礎上,我們就可以進行衛生設施配套的規劃,通常包括:
1、排水系統:地面與設備排水走向;明溝、暗管、窨井、地漏,如果車間是在首層,排水和地漏設計時要著重考慮,后期不便于增設;
2、供水系統:工藝、清洗、冷卻循環;
3、工藝管道:蒸汽、壓縮空氣、純化水、其它介質;
4、通風系統:換氣量、溫濕度、冷凝水、粉塵;
5、空氣過濾:凈化;正壓與負壓;
6、照明系統:整體、局部、防爆;
7、環境溫濕度控制系統:按產品工藝;
8、環境空氣消毒系統:按產品工藝;
9、蟲害設施配置;
食品工廠規劃是個系統工作,需要整合產品工藝與流程、衛生標準與功能分區、生產設備與設施、附屬設備與設施、產能與效率、現場管理與操作習慣、建筑布局與結構、消防與環保、交通與物流、投資預算與規劃目標等諸多要素。基于食品衛生的工廠規劃成果,是建筑設計與施工、裝修設計與施工的重要基礎和指引。當新建一個車間時要綜合生產、設備、研發、質量各部門意見,結合以往經驗規劃設計出來的車間更實用。
冰沙車間布局圖
.jpg)
糖果車間布局圖
.jpg)
肉制品車間布局圖
.jpg)
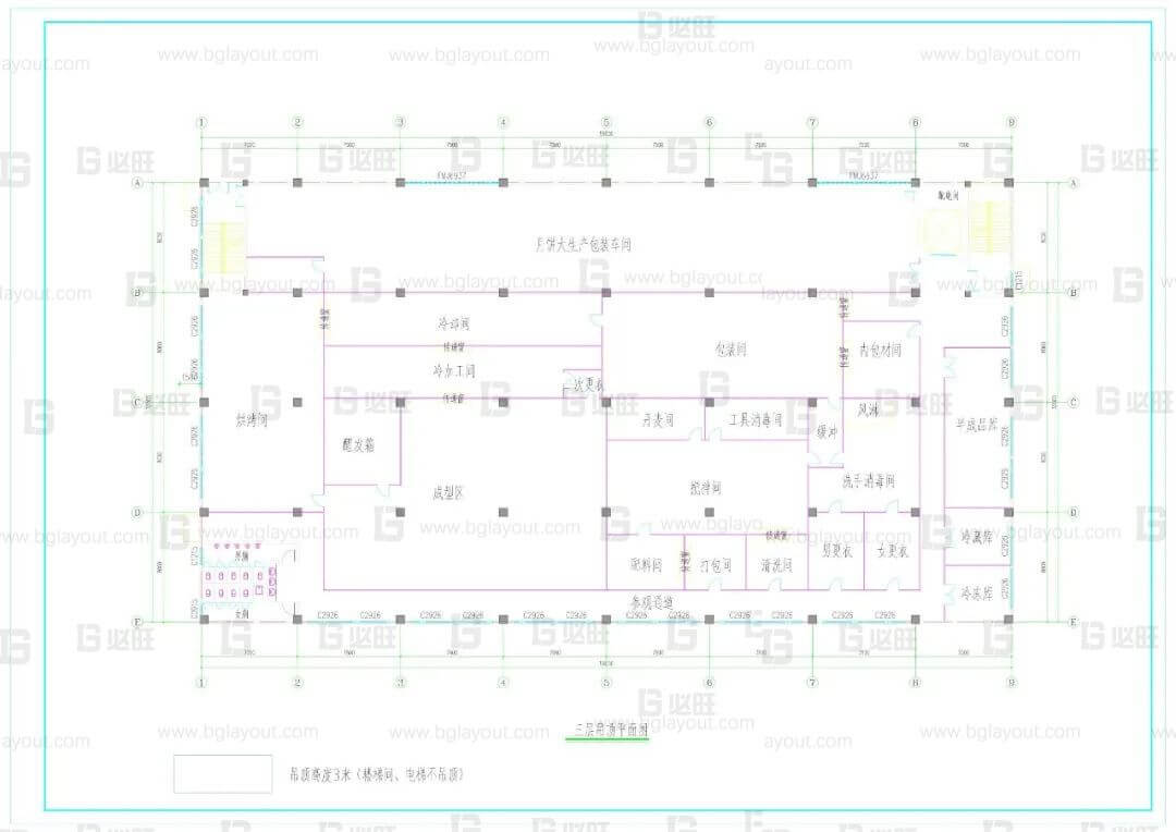
預包裝食品車間布局圖

月餅車間布局圖

成功案例
選擇上海必旺
開啟您的智能制造模式 ,加速企業數字化轉型
免費獲取方案報價
(1)_20230519.png)

400-800-9259

.jpg)

返回列表




